JUŚKIEWICZ ARCHITEKCI
BIURO ARCHITEKTONICZNE
JUŚKIEWICZ ARCHITEKCI
BIURO ARCHITEKTONICZNE
"Dom na skarpie" w stylu skandynawskim.
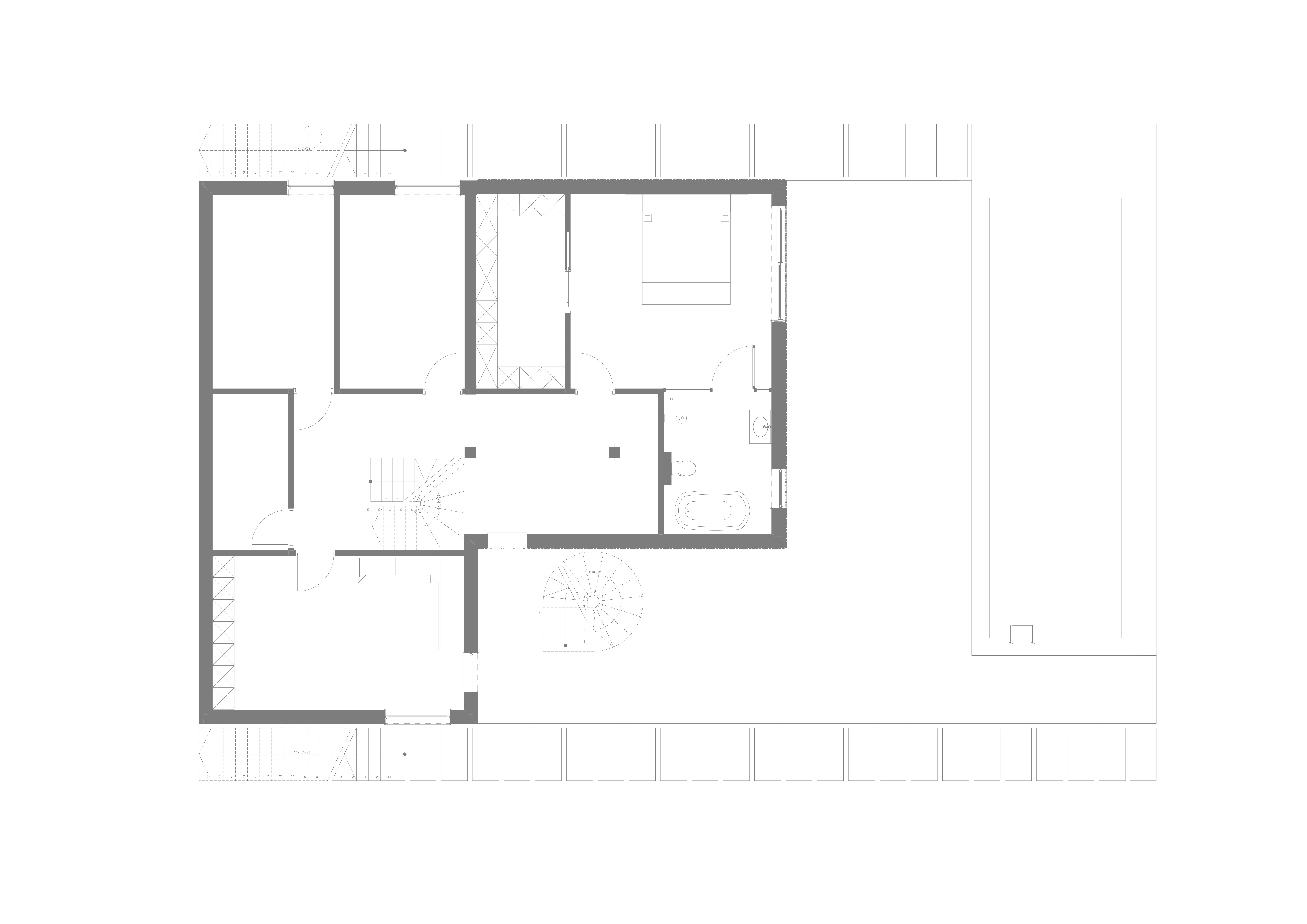
Budynek z dwiema kondygnacjami, który możemy podzielić na dwie strefy dzienną i nocną, gdzie na poziomie zerowym jest strefa dzienna z salonem i wyjściem na duży taras, kuchnią, spiżarnią, jadalnią, gabinetem, toaletą, miejscem do relaksu na antresoli, wiatrołapem oraz garażem na dwa auta. Na poziomie - 1 znajduje się strefa nocna z łazienką, pralnią z suszarnią, oraz trzy sypialnie w tym jedna sypialnia z łazienką i garderobą.
Bryła budynku prosta w konstrukcji drewnianej i żelbetowej, wykończona .deską drewnianą z drewnianymi lamelami oraz betonem architektonicznym. Dach pokryty czarną blachą trapezową, która nawiązuje do drewnianych lameli na elewacji. Zaprojektowano również schody spiralne z czarną stalową balustradą, które łącza ogród z tarasem

KONTAKT

 

PROJEKTY

 

O NAS

 

projekt domu

projekt domu